thank you
Your email has been sent.
Riverside Educational Facility 10350 Riverside Dr 7,551 SF of Office Space Available in Palm Beach Gardens, FL 33410



HIGHLIGHTS
- ±13,531 SF total across two freestanding educational/special-use buildings
- Purpose-built features: classrooms, administrative offices, cafeteria with commercial refrigeration, student lockers, drop-off/pick-up loop
- Prime access: minutes to I-95, Alt A1A, PGA Boulevard, and area amenities
- ±2.02 acres with fenced property, playground, outdoor basketball court, shaded seating, and landscaped green space
- Exceptional Palm Beach Gardens demographics: $114K median household income, 63K residents, growing family population
- Zoning: M1A Light Industrial – wide array of permitted uses (school, childcare, vocational, office, light industrial)
ALL AVAILABLE SPACE(1)
Display Rental Rate as
- SPACE
- SIZE
- TERM
- RENTAL RATE
- SPACE USE
- CONDITION
- AVAILABLE
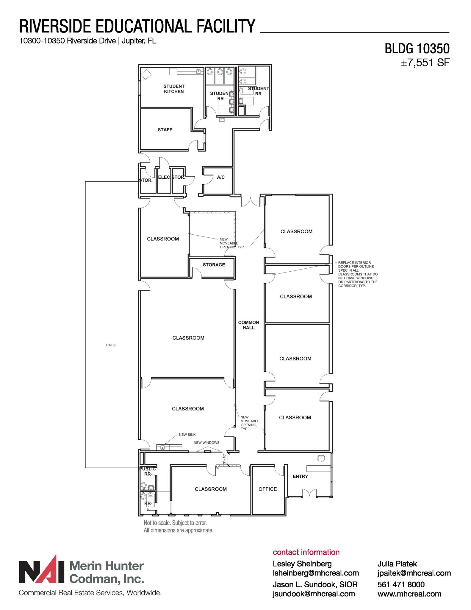
This ±7,551 SF single-story building on ±1.02 acres was originally developed for private school use and is equipped with flexible space for classrooms, offices, and student programming. The property features outdoor recreational areas including a fenced basketball court, shaded seating, playground space, and a landscaped drop-off/pick-up loop. Zoned M1A (Light Industrial), it carries a rare grandfathered educational use approval from the City of Palm Beach Gardens, making it ideal for school operators, charter programs, or childcare providers, while also suitable for other permitted uses such as vocational/trade schools, medical office, and professional services. This space is being offered for lease combined with 10350 Riverside Drive as one educational facility offering.
- Lease rate does not include utilities, property expenses or building services
- Mostly Open Floor Plan Layout
- Fully Built-Out as Standard Office
- Fits 19 - 61 People
| Space | Size | Term | Rental Rate | Space Use | Condition | Available |
| 1st Floor, Ste 10350 | 7,551 SF | Negotiable | $50.00 /SF/YR $4.17 /SF/MO $538.20 /m²/YR $44.85 /m²/MO $31,463 /MO $377,550 /YR | Office | Full Build-Out | Now |
1st Floor, Ste 10350
| Size |
| 7,551 SF |
| Term |
| Negotiable |
| Rental Rate |
| $50.00 /SF/YR $4.17 /SF/MO $538.20 /m²/YR $44.85 /m²/MO $31,463 /MO $377,550 /YR |
| Space Use |
| Office |
| Condition |
| Full Build-Out |
| Available |
| Now |
1st Floor, Ste 10350
| Size | 7,551 SF |
| Term | Negotiable |
| Rental Rate | $50.00 /SF/YR |
| Space Use | Office |
| Condition | Full Build-Out |
| Available | Now |
This ±7,551 SF single-story building on ±1.02 acres was originally developed for private school use and is equipped with flexible space for classrooms, offices, and student programming. The property features outdoor recreational areas including a fenced basketball court, shaded seating, playground space, and a landscaped drop-off/pick-up loop. Zoned M1A (Light Industrial), it carries a rare grandfathered educational use approval from the City of Palm Beach Gardens, making it ideal for school operators, charter programs, or childcare providers, while also suitable for other permitted uses such as vocational/trade schools, medical office, and professional services. This space is being offered for lease combined with 10350 Riverside Drive as one educational facility offering.
- Lease rate does not include utilities, property expenses or building services
- Fully Built-Out as Standard Office
- Mostly Open Floor Plan Layout
- Fits 19 - 61 People
ABOUT THE PROPERTY
Rare opportunity to acquire or lease ±13,531 SF across two freestanding educational/special-use buildings on ±2.02 acres in the heart of Palm Beach Gardens, FL. Formerly operated as a private school, 10300 & 10350 Riverside Drive benefit from a grandfathered educational use approval by the City of Palm Beach Gardens. The buildings are designed with functionality in mind, featuring classrooms, administrative offices, kitchens with commercial refrigeration, student lockers, and a dedicated drop-off/pick-up loop. Outdoor amenities include a fenced recreation areas, shaded seating, landscaped green space, and a basketball court. The property is zoned M1A (Light Industrial), supporting a wide array of uses beyond education, including childcare, vocational/trade schools, medical or professional office, and light industrial. Situated just south of Burns Road, the site offers ±428 feet of frontage along Riverside Drive and excellent accessibility - less than four minutes to I-95 at PGA Boulevard, with direct connections to West Palm Beach, Jupiter, and surrounding business hubs. Palm Beach Gardens is a premier city with affluent demographics, a median household income of $114,000, and a reputation for top-rated schools, luxury shopping, golf, and family-friendly neighborhoods. Nearby destinations include The Gardens Mall, Downtown at the Gardens, and Palm Beach International Airport within a 20-minute drive. This turnkey property is ideally positioned for school operators, charter organizations, childcare providers, and investors seeking a flexible-use asset in one of South Florida’s most desirable and fast-growing markets. Contact the NAI/Merin Hunter Codman team today to schedule a tour and learn more about this rare offering at 10300 & 10350 Riverside Drive.
PROPERTY FACTS
| Total Space Available | 7,551 SF | Building Size | 7,551 SF |
| Property Type | Specialty | Year Built | 1963 |
| Property Subtype | School |
| Total Space Available | 7,551 SF |
| Property Type | Specialty |
| Property Subtype | School |
| Building Size | 7,551 SF |
| Year Built | 1963 |
Presented by
Riverside Educational Facility | 10350 Riverside Dr
Hmm, there seems to have been an error sending your message. Please try again.
Thanks! Your message was sent.


